建制镇污水处理厂设计要点
发布时间:2024-12-17 16:27:49 来源:给水排水 作者: 雷轰,等 浏览次数:


01



建制镇污水处理现状

随着生态文明建设的快速推进,近些年来建制镇污水处理发展迅速,污水处理厂的数量从2018年的7 687座增至2022年的15 177座,建设规模从2018年的2238.84万m³/d增至2021年的3138.57万m³/d 。《中国城乡建设统计年鉴》显示,截至2022年,对生活污水进行处理的建制镇14 980个,占比77.84%,污水处理率为64.86%。


图片

图1 建制镇污水处理厂数量及规模


有研究针对全国1 155座已建成建制镇污水处理厂进行了调研,结果表明建制镇污水处理规模主要集中在1 000~5 000m³/d,出水多执行《城镇污水处理厂污染物排放标准》(GB 18918-2002)(下称国标)一级B或一级A,活性污泥法的应用较为广泛。


本研究实地调研了长江流域的70座建制镇污水处理厂,对建设规模、出水标准和处理工艺进行了统计分析。建设规模≤3000 m³/d的污水处理厂在统计项目中占比超90%。出水执行国标一级B的污水处理厂占比约20%,其他约80%的项目执行了国标一级A、《地表水环境质量标准》(GB 3838-2002)准Ⅳ类或者更为严格的地方标准,例如《巢湖流域城镇污水处理厂及重点工业行业主要水污染物排放限值》(DB 34/2710-2016)污水处理厂Ⅰ标准。污水处理工艺均选用了活性污泥法,其中90%的项目采用了AO或AAO工艺;9%的项目采用MBR工艺,为百吨级项目,出水执行巢湖标准;仅1个项目采用了氧化沟工艺。除采用MBR工艺的项目以外,其他项目均采用了深度处理工艺。深度处理采用混凝+沉淀+过滤工艺,其中过滤工艺采用滤布滤池或活性砂滤池等。43%的污泥处理项目采用叠螺脱水,12%的项目采用浓缩干化,6%的项目采用压滤脱水,其余39%的项目直接外运至其他污水处理厂处理。


02



调研存在问题

2.1 负荷率偏低

调研数据显示,千吨级的污水处理厂负荷率在32%~75%,平均负荷率62%;百吨级的污水处理厂负荷率在20%~50%,平均负荷率38%。调研的项目多为新建项目,与部分配套管线尚未完成有一定关系,但是整体看来存在负荷率偏低的问题。


2.2 用地不集约

根据《小城镇污水处理工程建设标准》(建标148-2010)的建设规模分类标准,对本次调研项目的用地指标进行统计分析,结果见表1。


表1 平均用地指标统计

图片


图片

图2 污水处理厂规模与用地


百吨级污水处理厂用地指标变化范围大、规律性差,随着处理规模的增加,用地指标有明显下降趋势,规模超出3 000m³/d时用地指标趋于平稳。调研项目尤其是百吨级污水处理厂用地指标偏高,一方面受到建设规模较小的影响,另一方面也与设计思路沿用了城市污水处理厂的设计思路、建(构)筑物布局分散、道路占地面积大有关。


2.3 工艺不适用

由于缺少运维管理人员,建制镇的污水处理应选择简单易管理的工艺,避免增加运维难度。


现场调研发现,部分改造项目原设计二级处理采用了生物膜法,运行过程中存在生物膜培养困难、无法应对目前较高的出水水质考核标准,如GB 18918一级A,因此在提标改造工程中将生物膜法改为了活性污泥法。


调研项目中有部分污水处理厂采用了人工湿地工艺,但是由于运行资金的短缺和运维力量的缺失,运行效果不理想,存在污堵后水流不畅、植被无人打理的情况,人工湿地没有发挥预期的处理效果,却给污水处理厂的正常运行造成了一定的困扰。因此人工湿地工艺的采用需要综合考虑项目的用地和运维管理能力等情况。


2.4 工程投资高

《城市污水处理工程项目建设标准》(建标198-2022)对建设规模为1万m³/d、出水达到一级A、采用常规污泥处理工艺的新建污水处理厂,投资估算应控制在3 825元/(m³·d)。调研项目中污水处理厂投资估算变化范围很大,排除个别明显偏离的数据外,投资集中在5 000~13 000元/(m³·d),投资较高,与处理规模明显小于1万m³/d有直接关系。


2.5 经营成本高

通过现场调研了解到,建制镇污水处理厂的经营成本高,普遍处于亏损的状态。政府支付的处理费用多在2.5元/m³以内,而实际经营成本多在3~4元/m³,个别运行负荷率在20%~30%左右的MBR工艺,经营成本粗估甚至高达7元/m³。


电耗和药耗是经营成本的重要组成部分,这两部分的实际经营成本会明显高于设计计算值,原因在于运行负荷率低但所有处理设备需要保持运转,导致处理单方水的电耗偏高;缺少精细化运维的技术力量和配套设施,为保证出水稳定达标,污水处理厂运行时的投药量明显高于实际需求,造成了药剂浪费。


人工薪酬是建制镇污水处理厂经营成本的重要组成部分,虽然运营单位注重了人员精简,例如一个水环境综合整治项目中的多个污水处理厂共用巡检技术人员和机修人员,现场操作工多为周边居民,但是由于处理规模小,导致薪酬成本依旧成为经营成本中较为醒目的一部分。


以调研的某项目为例,设计进水COD浓度为200mg/L,实际进水COD浓度年平均值介于100~200 mg/L之间,2022年全年平均值为154 mg/L,出水执行GB 18918一级A标准,政府支付的处理费用为2.27元/m³。2022年污水处理厂的实际运维成本平均在3.1元/m³,其中电费0.84元/m³,药剂费0.62元/m³,人工费0.92元/m³。


03



问题分析

上述调研过程中发现的问题,一方面与建制镇污水处理厂自身规模小有必然联系,另一方面也与缺少政策引导和针对性技术标准支持,设计和排放标准多数直接套用城镇污水处理厂的高标准有关。除了《城乡排水工程项目规范》(GB 55027-2022)、《室外排水设计标准》(GB 50014-2021)、《城镇污水处理厂运行、维护及安全技术规程》(CJJ 60-2011)等通用的标准外,目前完全针对建制镇污水处理厂的标准极少。


关于建制镇污水处理厂的设计标准,现行《小城镇污水处理工程建设标准》(建标148-2010)的部分内容已经不再适用,主要体现在:当前建制镇污水处理工程的出水多执行国标一级标准,极少执行本标准里提到的二级和三级处理标准;相应于出水考核指标的提升,本标准里仅有污水的一级和二级处理,已经不能满足当前污水处理工程出水稳定达标排放的技术需求;物价上涨外加建设标准的提升,现有标准的主要技术经济指标不再适用。


关于建制镇污水处理厂的运维标准,可供借鉴的仅广东省住房和城乡建设厅发布的《小城镇污水处理设施运行与维护技术规程》(DBJ/T 15-184-2020)等。


04



设计要点探讨

2021年出台的《“十四五”城镇污水处理及资源化利用发展规划》中提出,建制镇因地制宜采取就近集中联建、城旁接管等方式建设污水处理设施,推广“生物+生态”污水处理技术。2023年出台的《关于推进建制镇生活污水垃圾处理设施建设和管理的实施方案》鼓励建制镇研究制定适用于本地实际情况的污水处理设施建设、运行等地方标准规范,并提出推进建制镇污水的资源化利用。随着相关政策的陆续出台实施,建制镇污水处理厂的建设和运行有望发生积极的改变。以下就建制镇污水处理厂的一些设计要点进行初步的探讨,以期促进相关问题的解决。


4.1 合理确定规模

建制镇污水处理厂负荷率偏低,造成了投资和用地浪费,因此合理确定建设规模是污水处理厂设计时需重点控制的要点之一。


污水处理厂在建设过程中,预处理设施、污泥处理设施、生产用房以及附属设施建筑等,通常土建按远期规模一次建成,二级处理和深度处理多分阶段建设,因此合理确定污水处理厂的近期和远期建设规模同样是设计时需要重点关注的问题。


小城镇污水处理厂在确定规模时,除了依据相关规划外,更应加强对现场的调研:

(1)人口流动。随着城镇化发展,人口逐渐向城市流动,建制镇存在人口减少的可能性。当建制镇外出务工人员较多时,春节期间务工人员集中返乡会导致期间的污水量明显增加。旅游景点在旺季的处理水量明显增加,调研某厂以“温泉”为特色,在冬季尤其是春节期间出现水量增加的现象。调研时应重视对服务范围内小企业、小作坊的排水量和排水水质的摸排。


(2)用水习惯。对于缺水地区,例如调研的长江上游某地,经常会出现自来水断水问题,居民自家多有储水设施,平时用水较为节约,因此人均用水量小,产生的污水量也较少,水质较浓。污水处理厂进水的COD在800~1 000 mg/L,个别数据超1 000 mg/L;TN在80~100 mg/L,个别数据超100mg/L。


(3)排水体制。多数污水处理厂存在雨天处理量增大的情况:合流制管网雨天处理量增多为必然现象;分流制管网由于混错接和管理等问题,或者承担区域内初期雨水处理任务时,雨季污水管网的水量也会有所增加。因此污水处理厂的建设规模,可根据其服务范围内的管网特点,区分旱季和雨天的处理能力,并同步考虑旱季和雨天设计进水水质的区别。当系统内同步进行管网提质增效、黑臭水体治理等相关工程时,设计中应充分考虑其对建设规模以及进水水质的影响。


4.2 集约平面布局

建制镇污水处理厂的建(构)筑物宜组团化和集约化布置,节省投资和占地面积。

建筑物在满足现行《建筑防火通用规范》(GB 55037-2022)、《建筑防火设计规范》(2018版,GB 50016-2014)的前提下,应集约化布置,具体做法包括:生产用房就近设置在构筑物上方;生产用房合建;管理用房和生活设施用房合建;辅助生产用房可与生产用房合建,也可与管理用房、生活设施用房合建。对于百吨级的污水处理厂,厂区仅设置必须的建筑并尽量合建,如配电室、鼓风机房、进出水水质监测小室、危废暂存间、门卫和卫生间等。


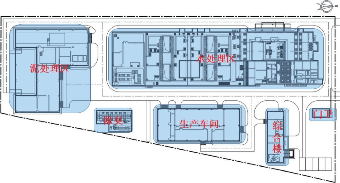
以某5 000m³/d的污水处理厂为例,污水处理采用“格栅+固液分离设备+调节池+生物池+二沉池+高效沉淀池+活性砂滤池+臭氧接触池+次氯酸钠接触消毒”工艺,污泥处理采用“脱水+好氧发酵”工艺。污水处理厂出水水质高,污泥可资源化利用,处理工艺流程长,但用地指标仅为1.89 m²/(m³·d),主要得益于厂区的集约化布置和建(构)筑物的组团化布置。


图片

图3 某污水处理厂平面布置


4.3 优选适用工艺

如前文所述,建制镇污水处理的运维管理力量薄弱,因此污水处理应选择抗冲击负荷能力强、运行稳定且运维工作量较小的工艺。在目前出水水质标准多执行国标一级A的条件下,污水处理厂一般需要设置三级处理工艺。


调节池用于缓解水量和水质冲击对运行的负面影响,对于建制镇污水处理厂是必不可少的。为改善后续处理单元的运行工况,保护机械设备,预处理阶段应设置沉砂池,但是从调研结果来看,多数建制镇污水处理厂没有设置,建议采用平流沉砂池或者旋流沉砂池。鉴于预处理构筑物尺寸小,采用混凝土结构实施难度大,也可采用预处理一体化设备,取代传统的细格栅、沉砂池和配套的砂水分离系统,减少运维的工作量。


二级处理工艺段,结合资料调研和现场运维人员的意见,AAO工艺可作为优选之一,一方面可高效去除有机物、氮和磷,满足高标准的出水水质要求,另一方面运维管理的工作量相对较小。SBR工艺自控程度高,设备较少,无需设置二沉池,对于建制镇污水处理厂也有较好的适用性。MBR工艺适用于对出水水质要求高、用地紧张、经济条件相对较好、运维管理水平较高的地区。建制镇污水处理厂对氮和磷的去除宜在二级处理阶段完成,避免在深度处理阶段设置专有的脱氮除磷单元,如气浮、反硝化滤池等,增加运维管理的工作量。


深度处理单元主要用于去除固体悬浮物,多采用混凝、沉淀和过滤工艺,对于结构较为复杂的处理单元,例如高效沉淀池或者连续流砂滤池等,可采用一体化装备。在用地允许且有较为充足的运维管理力量时,可采用人工湿地进一步提升出水水质,建议设置在消毒工艺之后。


消毒可根据尾水的用途,采用紫外消毒或者次氯酸钠消毒。


4.4 推进远程控制

现场少人(无人)值守是节约人力资源、降低经营成本的重要举措。设计中除了选择运维工作量小的工艺以外,在设备选型方面也应优选对运维管理需求少的型式,并提高自动化控制水平,为远程集中控制设置必要的设施。


在电气设备选型上,变配电系统设备主回路优先选择操作流程简单、性能稳定可靠、具备一定免维护功能的设备;控制回路配置故障自诊断及设备健康度自评估功能;功率因数补偿选用模块化补偿装置,具备故障后通过便捷更换后快速恢复生产的能力;低压变频电抗器选用变频器内置型等。


对一个区域内的多座建制镇污水处理厂,可选择其中一个规模较大的设置集中控制中心,对其他污水处理厂进行远程控制和管理,提高管理效率且降低经营成本。集中控制中心的建设,应以经济实用为原则,满足对进出水水质水量的实时了解、对重要设备运行状态的监控、对现场重要生产部位的视频监控、指令的下达、日常报表的线上填报等。


05



结 语

建制镇污水处理对于深入打好黑臭水体治理攻坚战、全面建设绿水青山有着重要的意义。调研发现,由于缺少针对性强的设计和运维标准的支撑,以及现阶段较高的出水考核指标要求,导致现状建制镇污水处理厂存在运行负荷率低、用地不集约、投资和经营成本高等问题。近几年出台的国家政策在积极推进建制镇污水处理的建设和因地制宜的污水资源化利用,但是配套的技术标准体系有待完善,因此建议根据政策的调整和技术需求,进一步完善建制镇污水处理和资源化利用的技术标准体系,促进建制镇水环境的可持续发展。本研究结合调研结果,初步探讨了建制镇污水处理在设计过程中应关注的要点,以期为后续工程提供参考。


微信对原文有修改。原文标题:建制镇污水处理厂设计要点探讨;作者:雷轰、张俊、王硕、冯硕、李振川;作者单位:长江生态环保集团有限公司、北京市市政工程设计研究总院有限公司。刊登在《给水排水》2024年第10期。


分享到:
登录 之后才能发表评论

热门评论

相关搜索
颁布时间
相关新闻 更多